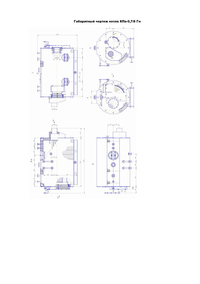
Паровой котел КПа-0,7/8 Гн
Описание:
Котел паровой жаротрубный КПа-0,7/8 Гн конструктивно выполнен по трехходовой схеме: жаровая труба, дымогарная труба второго хода и пучок дымогарных труб третьего хода. Корпус котла изолирован слоем высокоэффективной изоляции, что исключает потери тепла в окружающую среду. По требованию Заказчика котел может быть выполнен с встроенным экономайзером (в этом случае КПД котла составит 93%). Расчетный срок службы 20 лет. Котел имеет максимальную заводскую готовность к эксплуатации, комплектуется системою автоматизации.
Технические характеристики:
| Номинальная паропроизводительность, т/час |
0,7 |
| Рабочее давление воды, МПа (кг/см2) |
0,8 |
| Паровой объём, м3 |
0,35 |
| Водяной объём, м3 |
1,4 |
| КПД, % не менее |
70 |
| Аэродинамическое сопротивление, Па |
550 |
| Температура дымовых газов на номинальной нагрузке, °С |
240 |
| Расход природного газа с калорийностью 8000ккал/н.м3, н.м3/ч |
55 |
| Диапазон рабочих нагрузок, % |
40...100 |
| Температура питательной воды на входе в котел, °С |
102 |
| Номинальная температура пара на выходе, °С |
175 |
| Габаритные размеры, м |
|
| - длина |
3,0 |
| - ширина |
1,6 |
| - высота |
2,5 |
| Масса, кг |
2400 |