Опис:
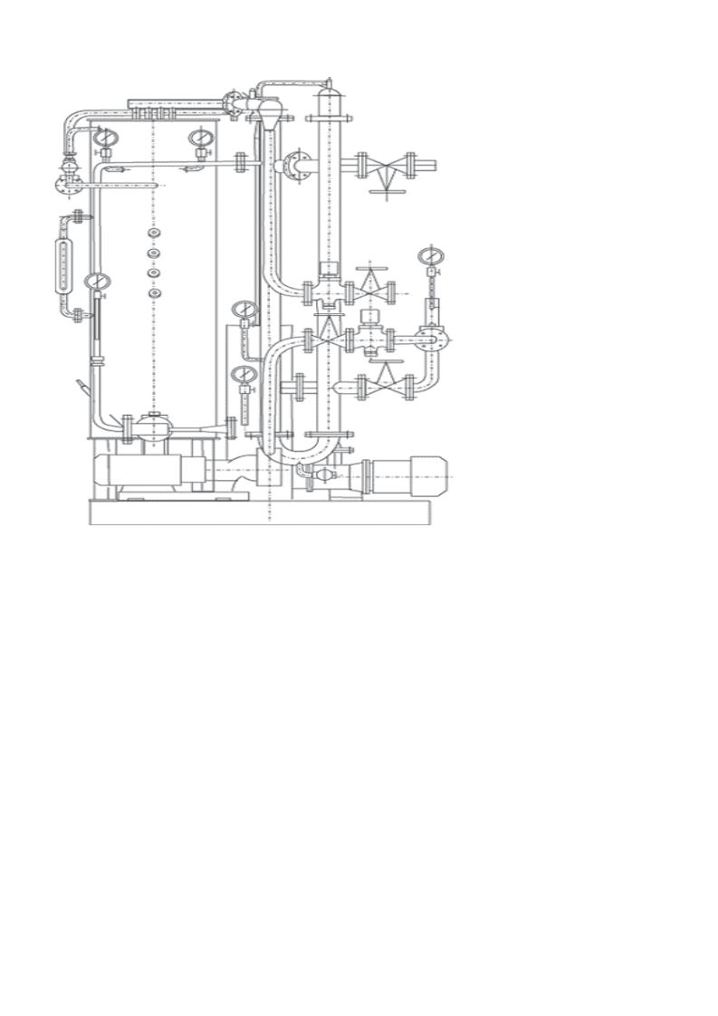
Установка вакуумна деаерації та підживлення ВДПУ
Установка ВДПУ комплектується деаераційною колонкою, секційним теплообмінником, газоводяним ежектором, гідроелеватором, приймальною ємністю, циркуляційним та підживлювальним насосами, запірно-регулюючою арматурою, системою автоматики, приладами КІП і А.
Установка призначена для дегазації хімічно очищеної підживлювальної води в пересувних та стаціонарних водогрійних опалювальних котельнях, в ручному та автоматичному режимах.
Технічні характеристики:
| Найменування параметра |
ВДПУ - 0,5 |
ВДПУ - 3 |
ВДПУ - 5 |
| Продуктивність, т/год |
0,1-0,5 |
0,5-3,5 |
0,5-5,0 |
| Вміст кислоти у вхідній воді, не більше мг/год |
9
|
9 |
відповідає насиченню |
| Вміст розчинених газів у деаерованій воді, не більше кисню, мгк/кг |
50 |
50 |
50 |
| Вільної вуглекислоти |
не допускається |
| Абсолютний тиск у колонці, МПа (кгс/см2) |
0,012-0,048 (0,12-0,48) |
0,012-0,048 (0,12-0,48) |
0,015-0,04 (0,15-0,4) |
| Температура деаерованої води, °C |
50-80 |
50-75 |
54-74 |
| Гріючої води, не менше |
87 |
60 |
70 |
| Вхідної води, не більше |
30 |
30 |
30 |
| Надлишковий тиск у зворотній лінії тепломережі, при максимальній продуктивності, не більше (кгс/см2) |
25 |
25 |
25 |
| Напруга живлення мережі (частота 50 Гц) Вольт |
380/+10% 380/-15% |
380/+10% 380/-15% |
380/+10% 380/-15% |
| Потужність встановлених електродвигунів, кВт |
6,0 |
8,5 |
8,5 |
| Маса метала, не більше, кг |
450 |
1200 |
2500 |
| Габаритні розміри, мм |
|
| довжина |
1200 |
1600 |
2500 |
| ширина |
1200 |
1300 |
1850 |
| висота |
2600 |
2800 |
2600 |