Котел сталевий водогрійний автоматизований КСВа-2,5 МВт

Котел сталевий водогрійний автоматизований КСВа-2,5 МВт
zoom Збільшити зображення

Опис:

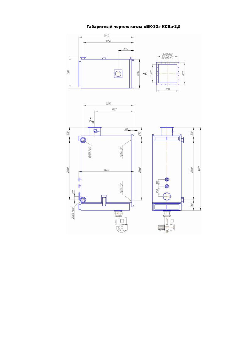
Котли серії "ВК-32" КСВа-2,5 мВТ

Котли сталеві КСВа призначені для опалення житлових та громадських будівель у стаціонарних та транспортабельних котельнях.

Відмінні риси газових котлів КСВа:
- надійна та безаварійна експлуатація протягом 10-15 років зі збереженням високого ККД 92,5-93% на весь період експлуатації;
- порівняно невеликі габаритні розміри, що дозволяють проводити монтаж в чинних будинках, замінюючи при цьому, морально та фізично застарілі котли типу НІІСТ та інші;
- широкий вибір виду палива: природний та скраплений газ, дизпаливо, пічне паливо, мазут та нафтохімічне паливо;
- зручний доступ до внутрішніх поверхонь для профілактичного огляду, чищення та ремонту, завдяки переднім дверям котла, що відкриваються на гідропетлях;
- конструкція забезпечує можливість щільного розміщення двох і більше котлів на невеликих площах, збільшуючи таким чином корисний коефіцієнт співвідношення потужності до залучених площ.

Технічні характеристики:

Найменування показника
КСВа- 2,5
Номінальна теплопродуктивність, МВт  2,5
Вид палива Природний газ згідно з ГОСТ 5542-87
Скраплений газ згідно з ГОСТ 20448-90
Легке рідке паливо
Теплоносій Вода (СНіП II-35-76)
ККД, % не менше  93
Температура води, °С:  
- на виході з котла, не більше 115
- на вході в котел, не менше 60
Робочий тиск води, МПа (кг/см2):  
- на вході в котел, не більше 0.6
- на виході з котла, не менше 0.35
Температура вихідних газів, °С не менше 160
Витрата води, т/год не менше 48,0
Розрахункова витрата палива, м3/год
(при теплоті згоряння газу q=8362 ккал/м3)
280
Номінальний гідравлічний опір, МПа 0.05
Діапазон регулювання, % 40...100
Тиск газу в топці при номінальній теплопродуктивності, Па не більше 600
Поверхня нагріву, м2 68,9
Водяний об'єм, м3 2,14
Маса, т не більше 2,8
Діаметр різьби патрубків водяних Ду 80
Перетин димаря (газохода), мм 294х194h
Клас котла 2
Термін службі, років не менше 10