Котел сталевий водогрійний автоматизований КСВа-1,0 МВт

Котел сталевий водогрійний автоматизований КСВа-1,0 МВт
zoom Збільшити зображення

Котел сталевий водогрійний промисловий КСВа 1,0 МВт 

Опис:

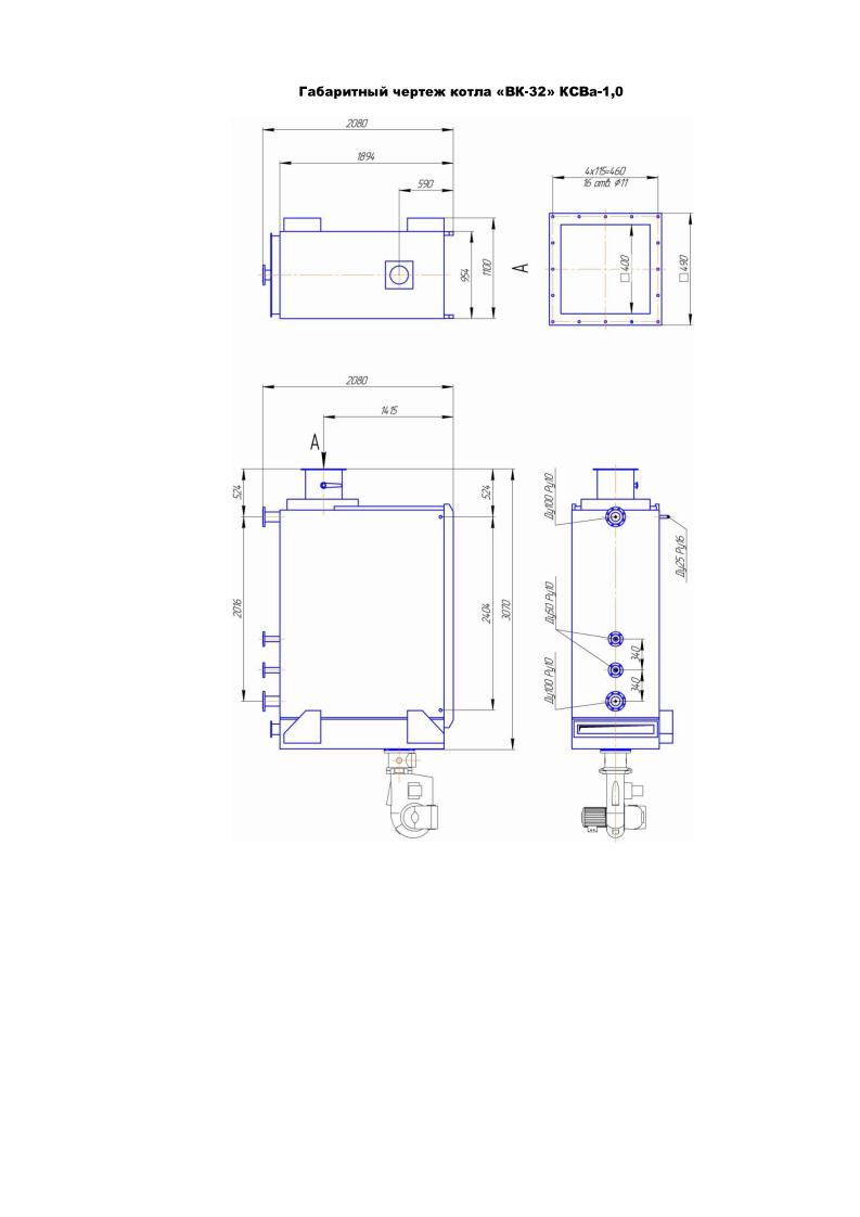
Котел КСВа -1.0Мвт серії ВК-32

Котли сталеві водогрійні автоматизовані водотрубно-газотрубного типу "ВК-32", що працюють на природному газі ГОСТ 5542-87 та легкому рідкому паливі, призначені для опалення та гарячого водопостачання житлових, виробничих та адміністративних будівель.
 
Експлуатація котла повинна проводитися в закритих системах теплопостачання з пом'якшеною деаерацією води для підживлення. Якість води має відповідати СНіП 11-36-73.

Сучасний дизайн, малі габарити, високі економічні, екологічні та теплотехнічні показники, надійність та якість котлів, а також простота їх монтажу та пусконалагоджувальних робіт забезпечать значну економію Ваших коштів, а головне – створять комфортні умови споживачеві.

 

Технічні характеристики:

Найменування показника
КСВа - 1,0
Номінальна теплопродуктивність, МВт  1,0
Вид палива Природний газ згідно з ГОСТ 5542-87
Скраплений газ згідно з ГОСТ 20448-90
Легке рідке паливо
Теплоносій Вода (СНіП II-35-76)
ККД, % не менше  93
Температура води, °С:  
- на виході з котла, не більше 115
- на вході в котел, не менше 60
Робочий тиск води, МПа (кг/см2):  
- на вході в котел, не більше 0.6
- на виході з котла, не менше 0.35
Температура вихідних газів, °С не менше 160
Витрата води, т/год не менше 19,0
Розрахункова витрата палива, м3/год
(при теплоті згоряння газу q=8362 ккал/м3)
120
Номінальний гідравлічний опір, МПа 0.03
Діапазон регулювання, % 40...100
Тиск газу в топці при номінальній теплопродуктивності, Па не більше 600
Поверхня нагріву, м2 28,6
Водяний об'єм, м3 0,9
Маса, т не більше 2,4
Діаметр різьби патрубків водяних Ду 80
Перетин димаря (газохода), мм 294х194h
Клас котла 2
Термін служби, років не менше 10